

 
                        
                            
                            
                        
                            
                            
                        
                            
                            
                        
                            
                            
                        
                     
                    
                Maco Rustico kruisheng met verstelbaar verzet en zijdelingse verstelling
Materiaal/afwerking: Verzinkt staal, zwart gepoedercoat.
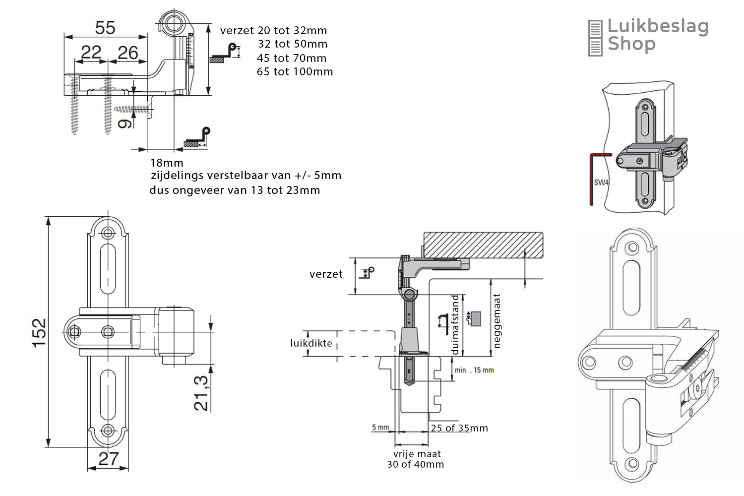
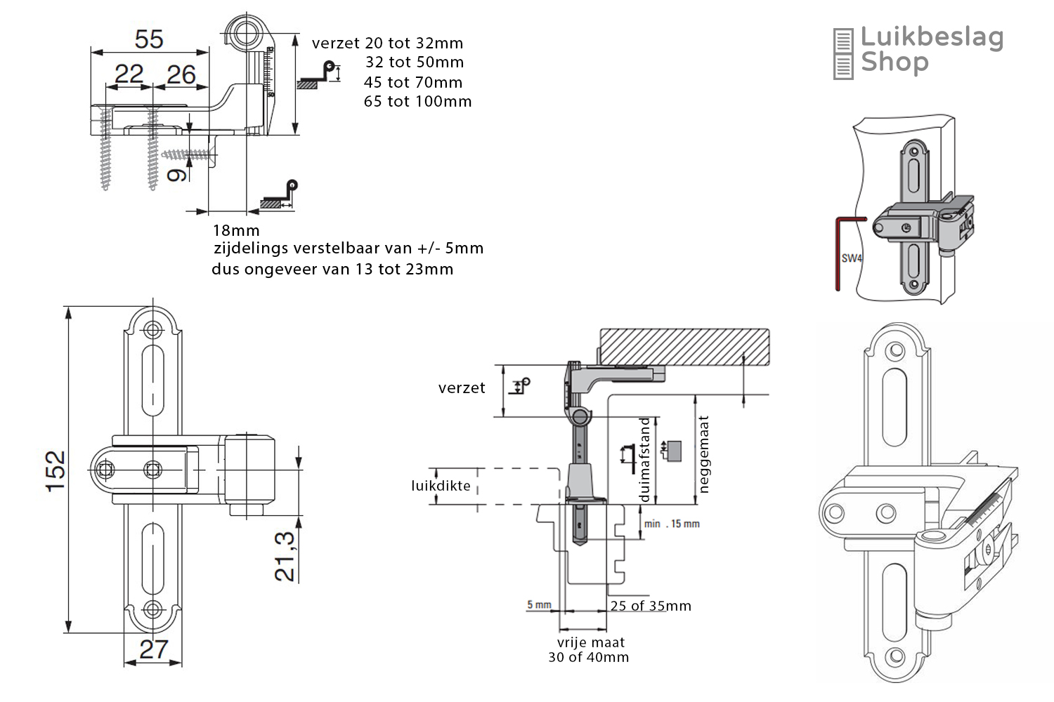
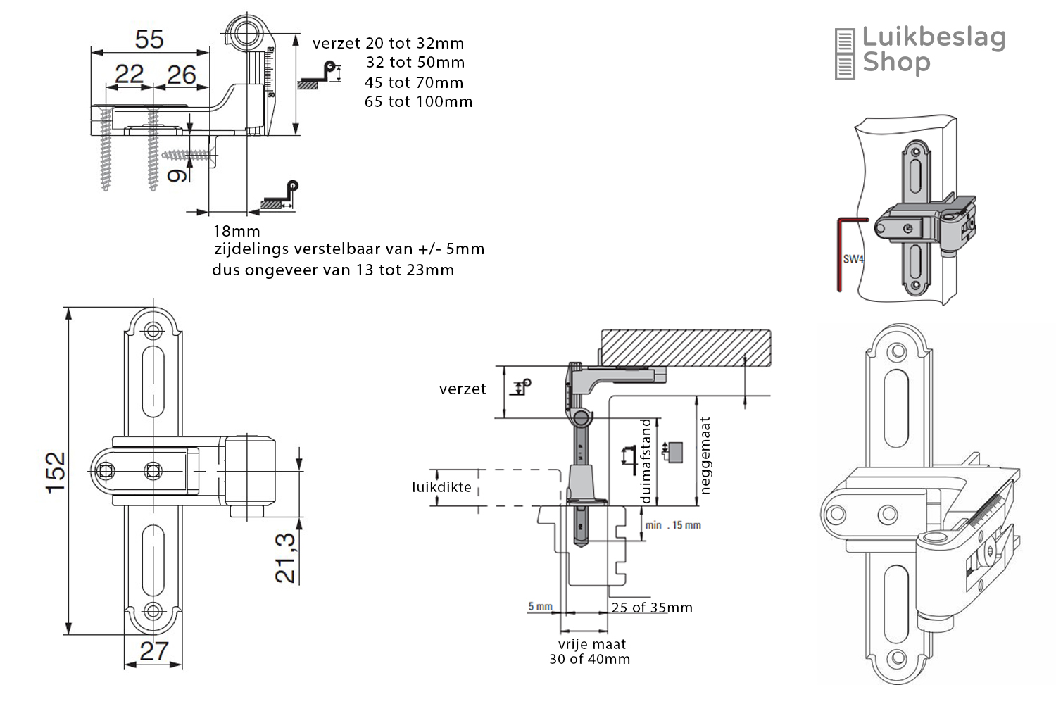
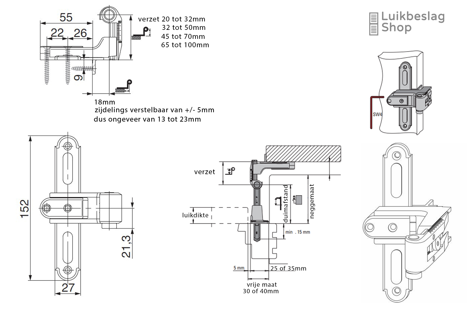
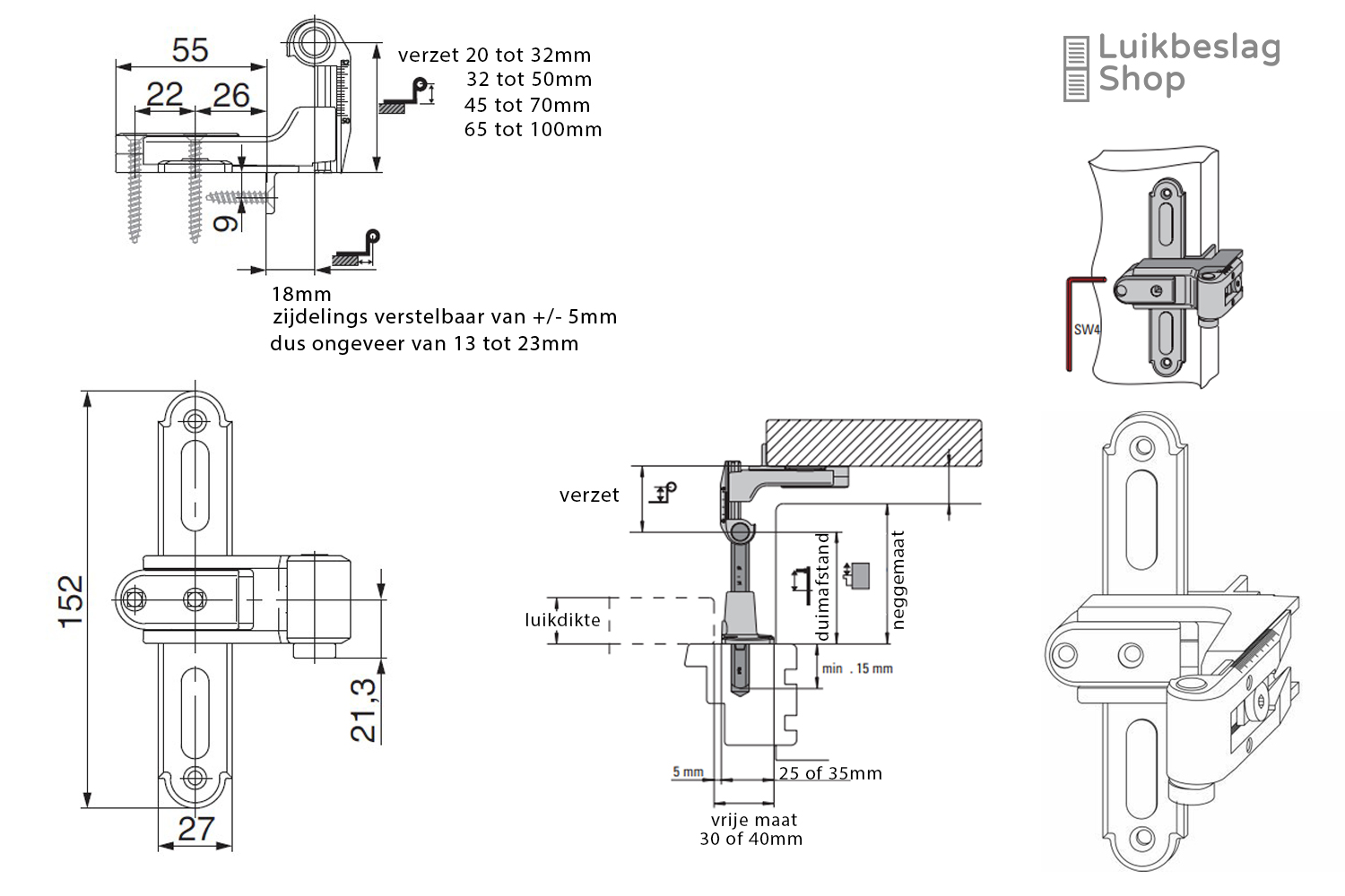
Afmetingen: Zie bijgevoegde afbeeldingen. Meer informatie: De Maco Rustico kruishengen zijn uitgerust met stelschroeven waarmee je de positie van de heng ten opzichte van de duim eenvoudig kunt aanpassen. Met een 4 mm inbussleutel draai je aan de regelbout aan de zijkant van het scharnier. Hiermee kan het luik zijwaarts worden verschoven met een bereik van circa ±5 mm. Voor dit type kruisheng betekent dit een zijdelingse verstelmogelijkheid van ongeveer 13 tot 23 mm. Deze instelbaarheid maakt de montage eenvoudiger en corrigeert eventuele scheefstand, zodat het luik netjes langs het kozijn draait en zonder te klemmen sluit. Daarnaast kan ook het verzet worden afgesteld.
De Maco Rustico-hengen zijn voorzien van een kunststof bus, wat slijtage minimaliseert en zorgt voor een soepele draaibeweging, zonder direct staal-op-staal contact. De hengen zijn zowel links als rechts te gebruiken. Het combineren van Maco Rustico hengen, duimplaten en duimstiften kan ingewikkeld zijn. Vraag ons advies Informatiecentrum. Kijk voor meer informatie en montagemogelijkheden in het informatiecentrum hier.
Aanvullende producten: